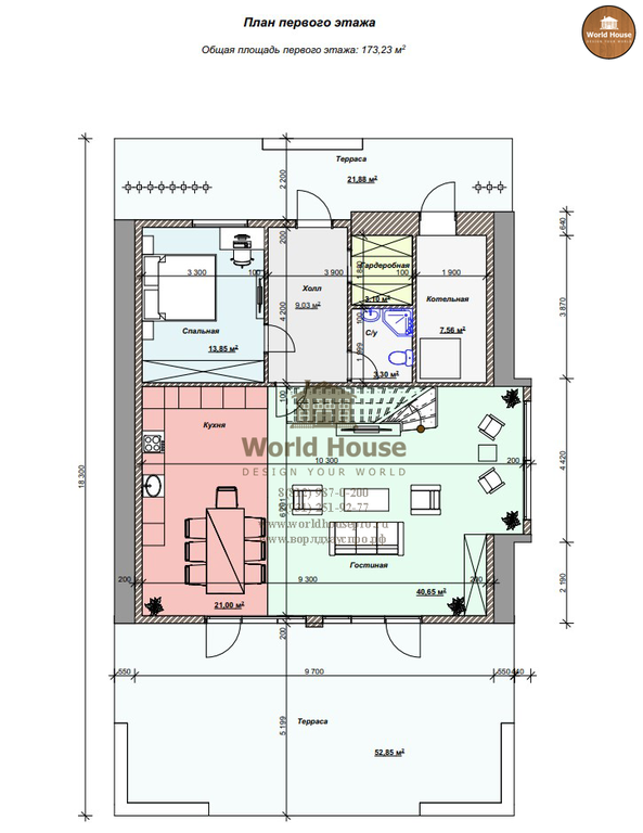
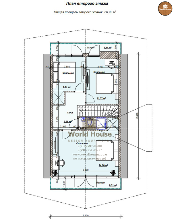
Шикарный дом - шалаш треугольной формы 240м2

Шикарный дом - шалаш треугольной формы 240м2
4408200 руб.

Шикарный, красивый, большой дом-шалаш. Он не оставит равнодушным никого. Идеальные ровные линии, большое панорамное остекление, фальцевая кровля - это и многое другое, придаёт данному проекту особенную красоту.


Проект всегда можно изменить и переработать под Вас.
Изменить не только площадь и размеры дома, но также материал и прочие конструктивные элементы. 

По всем вопросам:
8 (800) 200-1-789 - звонок бесплатный 
8 (931) 251-92-77 - звоните, пишите ватсап/вайбер


Если Вам понравился данный готовый проект и Вы хотите его купить, его стоимость - 19 500р. 
В случае строительства дома-шалаша в нашей компании любая проектная документация разрабатывается абсолютно бесплатно.

Шикарный, красивый, большой дом-шалаш. Он не оставит равнодушным никого. Идеальные ровные линии, большое панорамное остекление, фальцевая кровля - это и многое другое, придаёт данному проекту особенную красоту.


Проект всегда можно изменить и переработать под Вас.
Изменить не только площадь и размеры дома, но также материал и прочие конструктивные элементы. 

По всем вопросам:
8 (800) 200-1-789 - звонок бесплатный 
8 (931) 251-92-77 - звоните, пишите ватсап/вайбер


Если Вам понравился данный готовый проект и Вы хотите его купить, его стоимость - 19 500р. 
В случае строительства дома-шалаша в нашей компании любая проектная документация разрабатывается абсолютно бесплатно.